Skip To Content

2222 Carbon Canyon Road

Chino Hills, CA 91709
  • $1,089,000
  • STATUS: Active
  • ON SITE: 212 Days
  • ID#: CV25082855
UPDATED: 52 min ago
$1,089,000
  • 2
    BEDS
  • 2.5
    ACRES
  • 1
    BATHS
  • 0
    1/2 BATHS
  • 1,288
    SQFT
  • $845
    $/SQFT
Neighborhood:
Type:
Single-Family Home
Built:
1920
County:

School Ratings & Info

Description

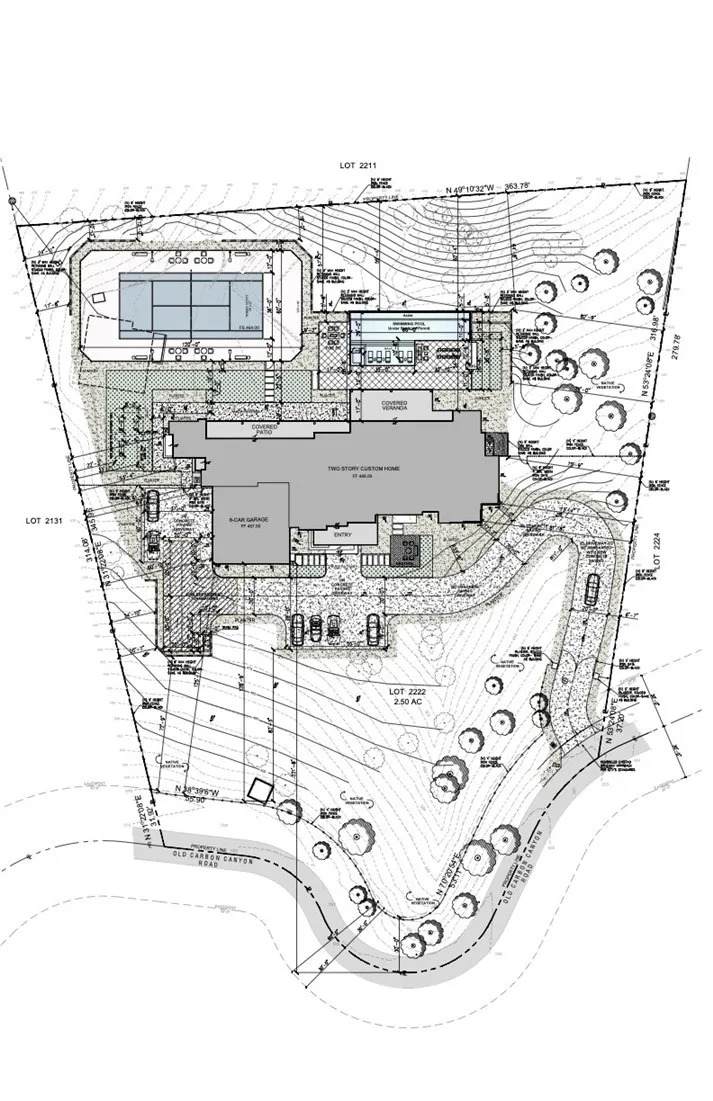
Offered at Land Value A Rare Custom Estate Opportunity Now is your chance to own a premier 2.5-acre lot in one of Chino Hills most Private and Centrally located locations 2222 Old Carbon Canyon Rd. This property comes with fully approved city plans and permits to build a stunning, nearly 11,000 sq ft custom estate featuring modern luxury, open architecture, and resort-style amenities including a tennis court, pool, and 8-car garage. Or build your own Dream home on a lot with Total Privacy. There is currently a small home on the lot, but the real value is in the land and the ready-to-build opportunity. Save months of time and cost all plans, architectural drawings, city inspections, and permits are included and transferable to the buyer at closing. Whether youre a builder, investor, or someone ready to create your dream estate, this property is fully prepared for your vision. Highlights: 2.5-acre private lot with scenic surroundings Approved plans for approx. 11,000 sq ft modern estate All permits, plans, and inspections included Potential to have Flat usable land with plenty of room for amenities Prime location in prestigious Carbon Canyon area Horse Properly Renderings and site plans available upon request.

Monthly Payment Calculator



San Diego MLS logo This information is deemed reliable but not guaranteed. You should rely on this information only to decide whether or not to further investigate a particular property. BEFORE MAKING ANY OTHER DECISION, YOU SHOULD PERSONALLY INVESTIGATE THE FACTS (e.g. square footage and lot size) with the assistance of an appropriate professional. You may use this information only to identify properties you may be interested in investigating further. All uses except for personal, non-commercial use in accordance with the foregoing purpose are prohibited. Redistribution or copying of this information, any photographs or video tours is strictly prohibited. This information is derived from the Internet Data Exchange (IDX) service provided by San Diego MLS. Displayed property listings may be held by a brokerage firm other than the broker and/or agent responsible for this display. The information and any photographs and video tours and the compilation from which they are derived is protected by copyright. Compilation © 2025 San Diego MLS, Inc. Licensed in the state of California.
www.talechiaandassociates.com/homes/162673545
Print Image

2222 Carbon Canyon Road Chino Hills, CA 91709

  • Price: $1,089,000
  • Status: Active
  • On Site: 212 Days
  • Updated: 52 min ago
  • ID#: CV25082855
2
Beds
1
Baths
0
½ Baths
2.5
Acres
1,288
SQFT
$845
$/SQFT
1920
Built
Neighborhood:
Chino Hills (91709)
County:
San Bernardino
Area:
Chino Hills (91709)
Property Description
Offered at Land Value A Rare Custom Estate Opportunity Now is your chance to own a premier 2.5-acre lot in one of Chino Hills most Private and Centrally located locations 2222 Old Carbon Canyon Rd. This property comes with fully approved city plans and permits to build a stunning, nearly 11,000 sq ft custom estate featuring modern luxury, open architecture, and resort-style amenities including a tennis court, pool, and 8-car garage. Or build your own Dream home on a lot with Total Privacy. There is currently a small home on the lot, but the real value is in the land and the ready-to-build opportunity. Save months of time and cost all plans, architectural drawings, city inspections, and permits are included and transferable to the buyer at closing. Whether youre a builder, investor, or someone ready to create your dream estate, this property is fully prepared for your vision. Highlights: 2.5-acre private lot with scenic surroundings Approved plans for approx. 11,000 sq ft modern estate All permits, plans, and inspections included Potential to have Flat usable land with plenty of room for amenities Prime location in prestigious Carbon Canyon area Horse Properly Renderings and site plans available upon request.
Exterior Features

Entry Level 1 Parking Total 0 Pool Features N/K View Mountains/HillsTrees/Woods

Interior Features

Bathrooms Total 1 Common Walls No Common Walls Cooling N/K Fireplace Features N/K Heating Other/Remarks Levels 1 Story Searchable Rooms Other/Remarks

Property Features

Assessments Special Assessments Association Fee 0 Building Area Total 1288 CFDMello Roos Fee 890 CFDMello Roos Fee Reflct Year List AOR Citrus Valley Listing Terms CashConventionalSubmit Miscellaneous Value in LandMountainous Monthly Total Fees 74 Property Sub Type Detached Sale Rent For Sale Sewer Public Sewer Special Listing Conditions Standard Stories 1 Water Source Public

San Diego MLS logo Listing provided courtesy of Christian Fuentes of RE/MAX TOP PRODUCERS: 626-625-9037. Listing information © 2025 San Diego MLS Inc. Source: CRMLS


San Diego MLS logo This information is deemed reliable but not guaranteed. You should rely on this information only to decide whether or not to further investigate a particular property. BEFORE MAKING ANY OTHER DECISION, YOU SHOULD PERSONALLY INVESTIGATE THE FACTS (e.g. square footage and lot size) with the assistance of an appropriate professional. You may use this information only to identify properties you may be interested in investigating further. All uses except for personal, non-commercial use in accordance with the foregoing purpose are prohibited. Redistribution or copying of this information, any photographs or video tours is strictly prohibited. This information is derived from the Internet Data Exchange (IDX) service provided by San Diego MLS. Displayed property listings may be held by a brokerage firm other than the broker and/or agent responsible for this display. The information and any photographs and video tours and the compilation from which they are derived is protected by copyright. Compilation © 2025 San Diego MLS, Inc. Licensed in the state of California.
 
https://bt-photos.global.ssl.fastly.net/sandiego/orig_boomver_2_306415624-1.jpg https://bt-photos.global.ssl.fastly.net/sandiego/orig_boomver_2_306415624-1.jpg https://bt-photos.global.ssl.fastly.net/sandiego/orig_boomver_2_306415624-1.jpg
Logo
COMPASS
16909 Via De Santa Fe Suite 100
Rancho Santa Fe CA, 92067